|
公司基本資料信息
|
|||||||||||||||||||||||||||
進口法蘭截止閥是指關閉件/閥瓣沿閥座中心線移動的閥門。根據閥瓣的這種移動形式,閥座通口的變化是與閥瓣行程成正比例關系。由于該類閥門的閥桿開啟或關閉行程相對較短,而且具有非常可靠的切斷功能,又由于閥座通口的變化與閥瓣的行程成正比例關系,非常適合于對流量的調節。因此,這種類型的閥門非常適合作為切斷或調節以及節流使用。
德國萊克LIK品牌,進口法蘭截止閥的啟閉件是塞形的閥瓣,密封面呈平面或錐面,閥瓣沿流體的中心線作直線運動。截止閥閥桿的運動形式,有升降桿式(閥桿升降,手輪不升降),也有升降旋轉桿式(手輪與閥桿一起旋轉升降,螺母設在閥體上)。截止閥只適用于全開和全關,不允許作調節和節流。
截止閥屬于強制密封式閥門,所以在閥門關閉時,必須向閥瓣施加壓力,以強制密封面不泄漏。當介質由閥瓣下方進入閥門時,操作力所需克服的阻力,是閥桿和填料的摩擦力與由介質的壓力所產生的推力,關閥門的力比開閥門的力大,所以閥桿的直徑要大,否則會發生閥桿頂彎的故障。近年來,從自密封的閥門出現以后,截止閥的介質流向就改由閥瓣上方進入閥腔,這時,在介質壓力作用下,關閥門的力小,而開閥門的力大,閥桿的直徑可以相應地減小。同時,在介質作用下,這種形式的閥門也較嚴密。我國閥門“三化組”曾規定,截止閥的流向,一律采用自上而下。 截止閥開啟時,閥瓣的開啟高度,為公稱直徑的25%~30%時,流量已達到最大,表示閥門已達全開位置。所以截止閥的全開位置,應由閥瓣的行程來決定。
截止閥的種類:按閥桿螺紋的位置分有外螺紋式、內螺紋式。按介質的流向分,有直通式、直流式和角式。截止閥按密封形式分,有填料密封截止閥和波紋管密封截止閥
進口法蘭截止閥特點:
1.結構緊湊、設計合理,閥門剛性好,通道流暢,流阻系數小。
2.J941H電動法蘭截止閥閥桿開啟或關閉行程相對較短,并具有非??煽康那袛鄤幼?。
3.閥蓋上設計了上密封座,在全開狀態下使填料密封更為可靠并方便填料的更換。
4.J941H電動截止閥根據密封形式不同分為平面密封和錐面密封,密封面采用不銹鋼和硬質合金,使用壽命長。
5.填料、墊片可根據實際工況或用戶要求合理選配,可適用于各種壓力,溫度及介質工況,密封可靠,性能優良。
進口法蘭截止閥技術參數:
|
公稱通徑 |
DN50 ~ DN250 |
|
公稱壓力 |
PN1.6~16.0MPa |
|
閥芯型式 |
柱塞式(錐面) |
|
連接形式 |
法蘭式連接 |
|
密封填料 |
聚四氟乙烯、柔性石墨 |
|
工作溫度 |
≤250℃ ≤550℃ |
進口截止閥的作用
譯文:
The role of the cut-off valve: Globe valve is a kind of widely used valve. The average diameter under 100 mm. It works similar to gate valves, just closed a move along the seat centerline (disc). It shut off role in line, can be roughly adjust flow. < br / > The advantages of the cut-off valve, manufacturing easy, easy maintenance, sturdy and durable. Globe valve disadvantages: only allowed to medium flows one-way, installation direction. Big flow resistance, bad sealing. Globe valve straight through, right Angle type, different points of the structure, balance type. Engineering in general use flange straight through and female cut-through. Globe valves have a direction, not according to the reverse. Unfavorable also fell. Globe valves in the production, life, used to straight-through, small cut-off valve, is now gradually replaced by ball valve.
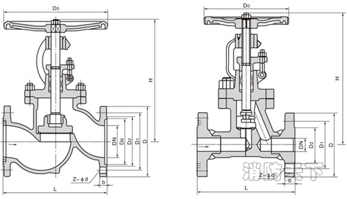
進口法蘭截止閥結構圖

進口法蘭截止閥工作原理:
進口法蘭截止閥的啟閉件是塞形的閥瓣,密封面呈平面或錐面,依靠電動推力旋轉閥杠,閥瓣沿流體的中心線作直線運動,使閥瓣密封面與閥座密封面緊密貼合,阻止介質流通。閥桿的運動形式,有升降桿式(閥桿升降,手輪不升降),也有升降旋轉桿式(手輪與閥桿一起旋轉升降,螺母設在閥體上)。電動法蘭截止閥只許介質單向流動,安裝時有方向性。截止閥的結構長度大于閘閥,同時流體阻力大,長期運行時,密封可靠性不強。
進口法蘭截止閥零件材料:
|
1 |
閥體 |
WCB-A105、WC6-12Cr1MoV、WC9-12Cr1MoV |
|
2 |
閥芯 |
2Crl3、lCrl8Ni9Ti、lCrl8Ni2Mo2Ti、316L、25Cr2Mo1VA |
|
3 |
閥桿 |
2Crl3、lCrl8Ni9Ti、lCrl8Ni2Mo2Ti、316L、25Cr2Mo1VA |
|
4 |
閥蓋 |
WCB-35、WC6-12Cr1MoV、WC9-12Cr1MoV |
|
5 |
填料 |
柔性石墨、PTFE |
|
6 |
填料壓蓋 |
2Crl3、lCrl8Ni9Ti、lCrl8Ni2Mo2Ti、316L、25Cr2Mo1VA |
進口截止閥原理簡介:
簡單來說截止閥的原理就是利用閥桿扭力給密封面一個向下壓力,依靠閥杠壓力,使閥瓣密封面與閥座密封面緊密貼合,阻止介質的流入或者用來調節介質的流速。截止閥的啟閉件是圓柱形的閥瓣,密封面呈平面或錐面,閥瓣沿流體的中心線作直線運動。閥桿的運動方式,有升降桿式(閥桿升降,手輪不升降),也有升降旋轉桿式(手輪與閥桿一起旋轉升降,螺母設在閥體上)。截止閥屬于強制密封式閥門,所以在閥門關閉時,必須向閥瓣施加壓力,以強制密封面不泄漏。

進口截止閥工作原理圖
進口截止閥的工作原理:
我們假設有一個帶蓋子的管道,水從管底流入,往管口方向流出,出水管口的蓋子就相當于截止閥的關閉件,要是用手向上提起管蓋,水就往外流出,用手將管蓋蓋住,水就停止流動,這就相當于截止閥的工作原理。

進口截止閥原理圖(關閉狀態)
截止閥靠旋轉手輪,使閥桿上升和下降,帶動閥瓣作平行于介質流向的直線位移,達到啟閉的目的。手輪按順時針方向旋轉,工作介質由閥瓣下方通道進入,此時,該施加的密封力必須等于或大于密封面上所產生的必須比壓和介質向上的作用力之和。

進口截止閥原理圖(開啟狀態)
截止閥開啟時,閥瓣的開啟高度,為公稱直徑的25%~30%時,流量已達到最大,表示閥門已達全開位置。所以截止閥的全開位置,應由閥瓣的行程來決定。
注:1.截止閥只許介質單向流動,安裝時有方向性。
2.截止閥的作用不是0,就是1,不是通就是不通。也就說截止閥只適用于全開和全關,不建議作調節和節流。